Crab Hill (2016-17)
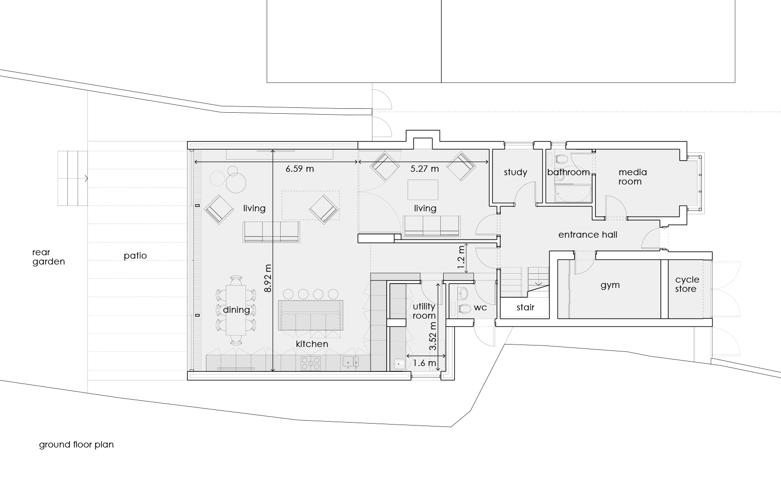
A large brick clad extension to an existing residential property in London, UK, containing new living and dining spaces, integrated with modernised ground floor spaces. Full width sliding doors open the space onto an external terrace and expansive garden beyond.
Location: London, UK
Client: Private
Structural Engineer: CAR
Project Status: completion December 2017




