Water / Power Book (2016)
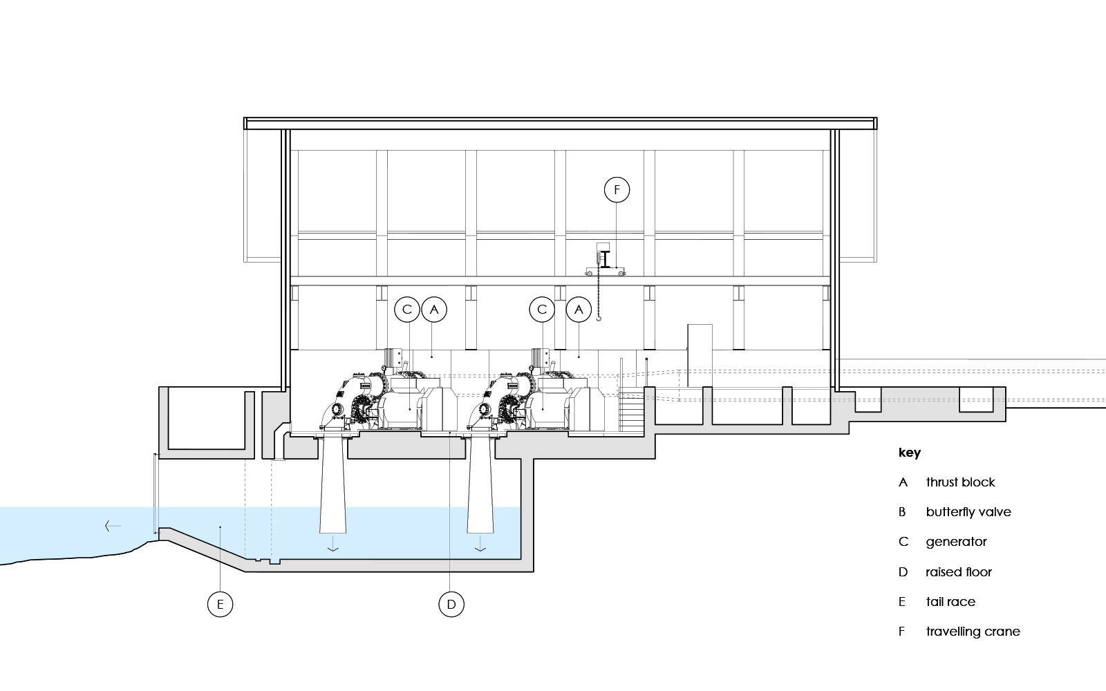
CORD was commissioned by Jamie Troughton to create technical illustrations of six hydro power stations for the book ‘Water / Power 2005-2015’. Ranging from site locations to general arrangement sections and perspective details of working components, the illustrations provided technical information on the layout and the mechanics of the hydro power stations.
Client: Jamie Troughton
Photographs: courtesy of Jamie Troughton







